| Adres: | Junostraat 301, 2516 BR Den Haag |
| Prijs | € 450.000,- k.k. |
| Type object | Appartement, portiekflat |
| Woonoppervlakte | 118,8 m² |
| Aanvaarding | In overleg |
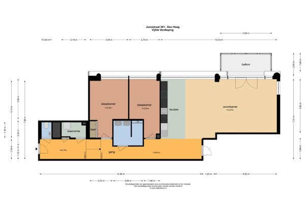
ENGLISH TEXT BELOW. Comfortabel 3-kamer appartement met lift en privé parkeerplaats. Mooie ligging op vrije locatie aan de Haagse Trekvliet, in de vernieuwende bruisende Haagse wijk de Binckhorst. Het goed onderhouden moderne hoek-appartement heeft een woonoppervlak van ca. 119 m², Energielabel A+, en is instap klaar. Vraag een bezichtiging aan via Funda, Pararius of website GRIP. WOONLOCATIE De Binckhorst is de meest verrassende wijk van Den Haag, waterrijk, stoer en industrieel. Het gebied is volop in ontwikkeling, er komen uiteindelijk zo’n 5.000 woningen. De oude bedrijven maken plaats voor een bijzonder gebied om te wonen, werken en leven. De ligging is ideaal, op korte afstand van Den Haag centrum, Oud Voorburg en Rijswijk. Drie treinstations CS, HS en Voorburg liggen dichtbij en binnen enkele minuten zijn de uitvalswegen A12/A4/A13 bereikbaar. In de Binckhorst zelf bevinden zich veel voorzieningen waaronder supermarkten, diverse horeca/restaurants, sportmogelijkheden, dansschool, wellness/Spa, roeivereniging, speelhal, watersportvereniging en een kinderdagverblijf/BSO (Kasteel de Binckhorst). INDELING (zie woningplattegrond achter de foto's voor afmetingen) Hoofdentree op begane grond met bellentableau (videofoon) en lift of trap naar de 5e etage. Portiek met entree naar het appartement, ruime hal, toilet (hangend en met fonteintje), inpandige berging met opstelplaats wasmachine/droger, 2 grote slaapkamers, ruime en luxe betegelde badkamer met elektrische vloerverwarming, royale inloopdouche, twee wastafelmeubels en design radiator. Royale en lichte woonkamer met grote raampartijen en prachtig vrij uitzicht over de Trekvliet, Den Haag, Rijswijk en Voorburg, vloerverwarming en moderne witte open keuken voorzien van veel bergruimte en ingebouwde inductiekookplaat, RVS afzuigkap, koel-/vriescombinatie, vaatwasser en combi-oven. Vanuit de woonkamer toegang via dubbele deuren tot zonnig balkon (ca. 9 m²), gelegen op het Zuidoosten. GOED OM TE WETEN: - Woonoppervlak ingemeten conform NEN 2580 ca. 118,80 m² (exclusief parkeerplaats); - Bouwjaar Junoblok ca. 1983, transformatie naar woning in ca. 2017; - Riante woonkamer met balkon, grote raampartijen en vrij uitzicht; - Instapklare woning, grotendeels voorzien van laminaatvloer en strakke stucwerk wanden/plafonds; - Professionele VvE administrateur Bentvelzen Bosch VvE Beheer. VvE bijdrage Junoblok (appartement) € 199,87 per maand; - De breukdelen in de splitsingsakte worden mogelijk aangepast als gevolg van nieuwe inmetingen woningoppervlaktes door de VvE; - Eigen parkeerplaats (eigendom en gelegen op eigen grond), gesitueerd op het parkeerdek van het naastgelegen gebouw 'Binck Twins'. Goed bereikbaar via brug vanuit het Junoblok. Professioneel beheerder VB REM. VvE bijdrage parkeerplaats € 23,62 per maand; - Gemeenschappelijke inpandige fietsenberging op begane grond; - Zeer goed geïsoleerd appartement met dubbel HR++ glas, kunststof kozijnen, gevelisolatie en energielabel A+; - Gasloze woning, aangesloten op het stadverwarmingsnet; - Erfpacht canon woning € 1.136,70 per jaar (€ 94,73 per maand). Eeuwigdurende erfpacht overeenkomst met grondeigenaar gemeente Den Haag. De grondwaarde is € 126.300,--. Huidig canonpercentage is 0,9%. De eerstvolgende canon herziening vindt plaats op 01-01-2027 (vijfjaarlijkse herziening).; - Ouderdom/materialen clausule en ‘niet zelf bewoond’ clausule (betreft voormalige huurwoning) zullen worden opgenomen in de koopovereenkomst. - De woning wordt verkocht zonder vragenlijst (betreft voormalige huurwoning); - Oplevering in overleg (kan snel). EERLIJK BIEDEN Eerlijk Bieden is een volledig onafhankelijk keurmerk voor makelaars dat de consument een eerlijk biedproces garandeert. Dankzij de inzet van slimme biedsoftware en audits draagt dit bij aan een eerlijk koopproces. MEETINSTRUCTIE NEN 2580 De Meetinstructie is gebaseerd op de NEN 2580. De Meetinstructie is bedoeld om een meer eenduidige manier van meten toe te passen voor het geven van een indicatie van de gebruiksoppervlakte. De Meetinstructie sluit verschillen in meetuitkomsten niet volledig uit, door bijvoorbeeld interpretatieverschillen, afrondingen of beperkingen bij het uitvoeren van de meting. ******************************* Comfortable 3-room (2 bedroom) apartment with elevator and private parking. Great and free location at the Haagse Trekvliet, in the innovative vibrant Hague district of Binckhorst. The well-maintained modern corner apartment has a living area of approx. 119 m², Energy label A+, and is ready to move in. LIVING LOCATION The Binckhorst is the most surprising district of The Hague, watery, tough and industrial. The area is in full development, eventually there will be around 5,000 homes. The old companies are making way for a special area to live, work and live. The location is ideal, a short distance from The Hague city center, Oud Voorburg and Rijswijk. Three train stations CS, HS and Voorburg are close by and the A12/A4/A13 highways can be reached within a few minutes. In the Binckhorst itself there are many facilities including supermarkets, various catering/restaurants, sports facilities, dance school, wellness/Spa, rowing club, arcade, water sports club and a daycare/BSO (de Binckhorst castle). LAYOUT (see floor plan behind the photos for dimensions) Main entrance on the ground floor with doorbells (videophone) and elevator or stairs to the 5th floor. Porch with entrance to the apartment, spacious hall, toilet (hanging and with washbasin), indoor storage room with space for washing machine/dryer, 2 large bedrooms, spacious and luxurious tiled bathroom with electric floor heating, large walk-in shower, two washbasins and design radiator. Spacious and bright living room with large windows and beautiful unobstructed view over the Trekvliet, The Hague, Rijswijk and Voorburg, floor heating and modern white open kitchen with plenty of storage space and built-in induction hob, stainless steel extractor hood, fridge/freezer, dishwasher and combi oven. From the living room access via double doors to sunny balcony (approx. 9 m²), located on the Southeast. GOOD TO KNOW: - Living area measured according to NEN2580 approx. 118.80 m² (excluding parking space); - Year of construction Junoblok approx. 1983, transformation into a apartment in approx. 2017; - Spacious living room with balcony, large windows and unobstructed view; - Ready-to-move-in home, largely equipped with laminate flooring and sleek stucco walls/ceilings; - Professional VvE administrator Bentvelzen Bosch VvE Beheer. VvE contribution Junoblok (apartment) € 199.87 per month; - The deed of division may be amended as a result of new measurements of the living areas by the VvE; - Private parking space (ownership and located on private land), situated on the parking deck of the adjacent building 'Binck Twins'. Easily accessible via bridge from the Junoblok. Professional manager VB REM. VvE contribution parking space € 23.62 per month; - Shared indoor bicycle shed on the ground floor; - Very well insulated apartment with double HR++ glass, plastic frames, facade insulation and energy label A+; - Gasless house, connected to the district heating network; - Leasehold (erfpacht) canon apartment € 1,136.70 per year (€ 94,73 per month). Perpetual leasehold agreement (eeuwigdurende erfpacht overeenkomst ) with landowner municipality of The Hague. The land value is € 126,300. Current canon percentage is 0.9%. The next canon revision will take place on 01-01-2027 (five-yearly revision); - Age/materials clause and 'not occupied by the tenant' clause (concerns former rental property) will be included in the purchase agreement. - The property is sold without a questionnaire (former rental property); - Delivery in consultation (can be done quickly). EERLIJK BIEDEN (FAIR BIDDING) Eerlijk Bieden (Fair Bidding) is a completely independent quality mark for real estate agents that guarantees the consumer a fair bidding process. Thanks to the use of smart bidding software and audits, this contributes to a fair purchasing process. MEASUREMENT INSTRUCTION NEN 2580 The Measurement Instruction is based on the NEN 2580. The Measurement Instruction is intended to apply a more uniform way of measuring to give an indication of the usable surface area. The Measurement Instruction does not completely rule out differences in measurement results, for example due to differences in interpretation, rounding or limitations in carrying out the measurement.
| Referentienummer | 00116 |
| Vraagprijs | € 450.000,- k.k. |
| Servicekosten | € 223,42 |
| Inrichting | Ja |
| Inrichting | Gestoffeerd |
| Aanvaarding | In overleg |
| Aangeboden sinds | Dinsdag 23 september 2025 |
| Laatste wijziging | Vrijdag 14 november 2025 |
| Type object | Appartement, portiekflat |
| Woonlaag | 5e woonlaag |
| Soort bouw | Bestaande bouw |
| Toegankelijkheid | Mindervaliden Senioren |
| Bouwperiode | 2017 |
| Type dak | Platdak |
| Keurmerken | Energie prestatie advies |
| Isolatievormen | Dubbel glas HR-glas Kierdichting Muurisolatie |
| Woonoppervlakte | 118,8 m² |
| Inhoud | 393 m³ |
| Oppervlakte gebouwgebonden buitenruimte | 9 m² |
| Balkonoppervlakte | 9 m² |
| Aantal bouwlagen | 1 |
| Aantal kamers | 3 (waarvan 2 slaapkamers) |
| Aantal badkamers | 1 (en 1 apart toilet) |
| Ligging | Aan rustige weg Aan vaarwater Dichtbij openbaar vervoer Nabij school Open ligging Vrij uitzicht |
| Energielabel | A+ |
| Aantal parkeerplaatsen | 1 |
| Warm water | Centrale voorziening Stadsverwarming |
| Verwarmingssysteem | Stadsverwarming Vloerverwarming (gedeeltelijk) |
| Ventilatie methode | Mechanische ventilatie Natuurlijke ventilatie |
| Badkamervoorzieningen | Dubbele wastafel Inloopdouche Vloerverwarming Wastafelmeubel |
| Parkeergelegenheid | Parkeerplaats |
| Heeft een balkon | Ja |
| Heeft een lift | Ja |
| Beschikt over een internetverbinding | Ja |
| Heeft ventilatie | Ja |
| Ingeschreven bij de KvK | Ja |
| Jaarlijkse vergadering | Ja |
| Periodieke bijdrage | Ja |
| Reservefonds | Ja |
| Meer jaren onderhoudsplan | Ja |
| Opstal verzekering | Ja |
| Kadastrale aanduiding | Den Haag AP 1959 |
| Omvang | Appartementsrecht of complex |
| Eigendomsituatie | Erfpacht |
| Lasten | € 1.136,70 per jaar (variabel) |
| Kadastrale aanduiding | Den Haag AP 1784 |
| Omvang | Appartementsrecht of complex |
| Eigendomsituatie | Eigen grond |
| Lasten | € 1.168,- per jaar |